REFORM / RENOVATION

皆さんはリフォームやリノベーションと聞くと、老朽化でボロボロになったから直すという印象をお持ちではないでしょうか。
これまで多くのリノベーションに携わってきましたが、不思議なくらいそのような方は少ないのです。
では、どのような方がリノベーションするのかというと、家事をもっと楽に、住まいをもっと快適に、中古物件を購入して性能向上を図りたいなど、暮らしの水準を高めたい人、またそれを実行できる資金力のある方です。
はじめは、建て替えるか、リノベーションするか悩んでいました。しかし、建道さんに提案された具体的な図面や資料を見てみると、自分たちが想像していた暮らしは、リノベーションでも充分叶えられることがわかりました。
(築30年:木造)


実はこの建物は賃貸なんです。今後も10年くらいはここに住み続けると想定しています。しかし、子供たちの成長を考えると、少しでも早く勉強スペースや個室をつくってあげたいと考えていました。そこで、オーナーさんに相談したところ快諾をいただいたので、リノベーションに踏み切りました。
(築27年:木造)


2つを抱き合わせて使うと1m40cm×80cmのテーブルになるパソコンディスクを提案してもらいました。息子が帰って来たときはダイニングテーブルとして使っています。限られた空間なので、場所を取っていたダイニングセットを処分できてスッキリしました!
(築30年:RC造マンション)


1Fでは歯科医院を開業しています。跡継ぎの息子も帰ってきたので、お昼は私たち夫婦と息子家族とみんなで食べることが日常になってきたのです。そのため、動線もスムーズで広いLDKが欲しくてリノベーションしました。また、日光ですから冬が寒いので、とにかくあたたかくしたかったのです。
(築35年:鉄骨造)


ハウスメーカーに長年勤めていたので、建築の知識はありました。しかし、いくら考えても現状では解決できず私の収納の悩みはリノベーションと造作家具の組み合わせしかないと思いました。リビングにはテレビとその周辺機器そしてパソコンやプリンターなど、テレビ以外は見せないシステムボードを考えてもらいました。機能的でスッキリしたリビングになりました!
(築25年:鉄骨造)




住まい手となるお客様がリノベーションをする目的は、暖かい家に住みたい、デザインも今時の雰囲気にしたい、最新の機能を取り入れたいなど、リノベーションを実施する部分については『新築のようにしたい』が目的だと考えています。
建道の目標は、住まい手となるお客様の意見を尊重しつつ、建物の基本性能を向上させるリノベーションにすることです。
そのことで、住まい手の目的である『新築のようにしたい』を実現することができると考えております。
目標を達成するために実施する内容と設計手順について、事例を交えながら紹介します。
現地調査を実施して、既存建物の状況を把握することからはじめます。快適な暮らしをするためにも、まずは構造のチェックをしましょう。
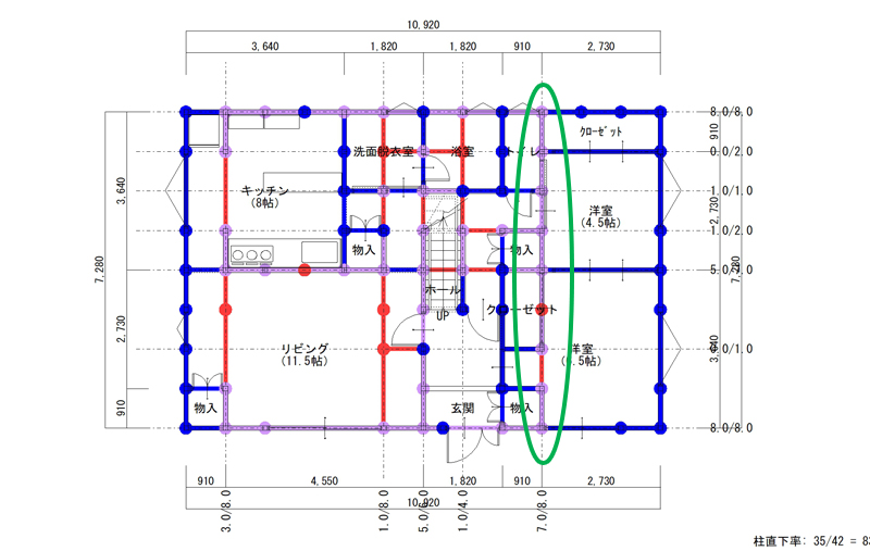
※ここでは既存の建物の、壁量とバランスを確認することができます。

次に、上下階で柱と壁の位置が、どの程度一致しているかを把握します。このことを直下率と言い、リノベーション後の直下率は60%以上を目安にしています。
見方:青は1階の壁と柱、赤は2階の壁と柱、紫は1階と2階の壁と柱が一致している部分で、この紫が多いほど安全な建物となります。
右下図は建道の事例です。既存の直下率は柱:40.5%、壁:50.8%と比較的直下率が悪い建物です。
緑で囲った部分に注目!!
2階の外壁ラインが1階の柱も壁もない空間の上部にあります。これはとても良くないので、改善できるように間取りを計画します。

『お客様の意見を尊重』しつつ『既存構造の改善』を図りながら間取りを計画していくことが、リノベーションの設計で一番難しいところです。
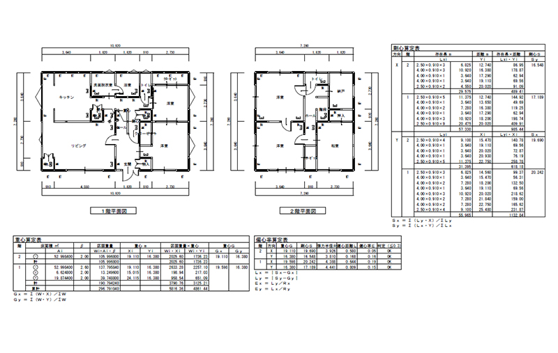
難しいことは説明も長くなるため、ここでは結果だけをお伝えします。
上の既存直下率の図と比較して、リノベーション後の左図は紫色が増えたことがわかります。また、一番の問題点であった緑で囲ったラインも上下階一致を表す紫へと変化しています。
大まかに言うと、右上にあった台所を左上に移動、そして、右下にあった居間を左下に移動することで、生活に支障なく、かつ、直下率も改善することができる間取りになりました。
リノベーション後の直下率は柱:83.3%、壁:63.5%と大幅に改善しました。

直下率の改善と住まい手の希望が叶えらる間取りができたら、今度は窓と耐力壁の配置計画を同時におこないます。
窓が多くなれば耐力壁を配置できる壁は少なりますし、偏った窓の配置にすると耐力壁のバランスも偏ったものになってしまいます。
ですから、窓と耐力壁は同時に計画することが望ましいのです。

計画した耐力壁の量とバランスを4分割法で確認します。
また専用のソフトを用いて偏心率等もチェックします。
実際の設計業務では、②~⑤全てを平行して計画を練っている感覚ですが、あえて順番を付けると、このような手順になります。

以上が、耐震性能:上部構造を耐震等級3と同等程度にするための内容と手順になります。上記以外にも影響を及ぼす項目は多くありますが、皆様にとって身近な『間取り』や『窓』が耐震性能に大きく影響していることは、ご理解いただけたかと思います。
次に、施工方法や仕様で予算にも大きな差がつく断熱工事について検討します。
今回の事例のように間取り変更が伴うリノベーションの場合、ほとんどは、自社の新築と同じ仕様・工法になりますが、お客様の予算配分や、そこまでする必要性がないなどの理由から、異なる工法を採用する場合がございます。

建道が定める目標Ⅰ~Ⅳすべてを実行できる規模は、右写真のうように柱や梁など構造躯体のみになるまで、解体してから直していくリノベーションです。
この場合は新築と同じ材料・工法を選択します。

自社の新築と同じ高性能グラスウールを柱間に充填する方法です。断熱材充填後に気密シートを張って、サッシやダクト、コンセントなど空気が行き来しやすい部分を気密テープ等を用いて処理します。
自社新築の実績で全棟平均C値は0.38で、精度が高い施工をしております。
実はこの工法、比較的気密性が取りずらいと言われています。それでもなぜ、この工法を採用しているのかにつきましては『建道が新築設計で大切にしていること』で紹介しております。このページの一番下にリンクを貼ってありますので、良かったらご覧ください。

床には、スタイロエースⅡの90mm厚を大引間に施工します。新築と施工方法はやや異なりますが、材料は同じです。
実は、自社新築と異なる点が1つだけございます。新築の場合は付加断熱と言って、柱の外側にEPSという断熱材を貼り断熱層が2重になります。
もちろんリノベーションでも施工は可能ですが、この付加断熱なしでも充分HEAT20のG1水準を満たす仕様のため、リノベーションでは付加断熱を採用しておりません。
ちなみに新築の場合は目標をHEAT20のG2水準以上にしているため付加断熱は必須になります。

これは建道の目標のⅢとⅣを、リノベーションで実施する方向性です。お客様が耐震性能や断熱性能の向上までは望まない理由として
などがあげられ、耐震性能、断熱性能については、現状維持の方向性になることもございます。
以上が、断熱性能に関する内容と手順になります。
お客様の言葉をお借りすると、建道の意匠性は『和モダン』になります。
幼少のころから剣道をしてきたので、神前、神棚、板の間、畳、障子(格子戸)などで形成される道場で過ごす時間が⾧かったせいか、どことなく『和』を感じる空間が落ち着くようになってしまいました。

そして、建築に携わると、細く加工された材を組み合わせてつくる障子に興味を持ちました。
升目格子、縦格子など、格子だけでも複数の組み方が実現でき、更に伝統的な組子と言われる技法もあります。
私の勝手な解釈ですが、組子と呼ばれる伝統工芸品を見ていると、遊び心がない人に、こんな発想はできない!と感じます。
ですから、技術力が高く遊び心を感じる建具は、私にとって空間の印象を決定するツールなのです。

その他、空間を印象付ける建具事例




これまでお話した耐震性能、断熱性能、意匠性については、近いレベルまで高めることはできますが、ゼロから作っていく新築には敵わないのが現実です。
しかし、キッチンをはじめとする水廻り設備商品は、新築で採用いただく商品より、ワンランク上の商品を選ぶ方がほとんどです。

なぜなら新築では全ての工事が必須となりますが、リノベーションの場合は『やらなくて良い工事』があるのです。
例えば
など、一切手を付けづに済む、手を付けても小規模で済むと言った経済性が図れるため、その分、水廻り商品のグレードを高くできる傾向になります。

水廻り商品に限らず、ここだけは妥協したくないなど『こだわりに投資ができる』と言う点は、リノベーションの特徴でもあるのです。


以上が、住まい手となるお客様の目的を達成するために定めた、建道の目標と設計手順についてのご紹介になります。
ここまで計画を進めることが出来れば、詳細の見積りを作成することができます。
次の段階では、お客様へプランと見積りの内容を説明します。
左のパースは初期の提案プランで右は実際の完成写真です。提案と実際とでは異なる点がいくつかあります。お客様の意見も尊重しつつ、設計者の意図もお伝えしながらプランに修正を加えていきます。


こちらも、左が弊社からの提案パースです。その後、打ち合わせを重ね、実際に施工した完成写真が右側になります。


以上のようなステップで、プランそして金額にご納得いただけたらご契約となります。建道は設計だけではなく、責任を持って施工までおこないますので、言った言わないなどのトラブルも少ないと自負しております。
いかがでしたでしょうか。
住まいのリノベーションをお考えの方にとって参考になれば幸いです。
また弊社のイベントに参加希望の方は『MODEL HOUSE』または『ワークショップ』を利用してみてはいかがでしょうか。イベントのテーマはリノベーションと異なりますが、弊社のモデルハウスで実施するイベントのため、参加の目的は問いません。
申込の際は「リノベーションの相談で」など一言加えていただければ幸いです。
最後まで読んでいただきありがとうございました。
建道 鈴木 充
